Ref 1819; Authentic sea view villa with 3 apartments in Palma El Terreno for sale

Investment real estate / Villa / Terraced house / Finca · Palma - El Terreno • Ref 1819
Exposé (PDF)

details

Living space: 269 m²
Bedroom: 5
Bathroom: 3
Floor space: 307 m²
Floors: 3
Year of construction: 1936
Status: Sold
ID: 1819
Region: Palma - El Terreno

Description

Building with a total of 3 residential units with sea view, located in the beautiful upper part of El Terreno.

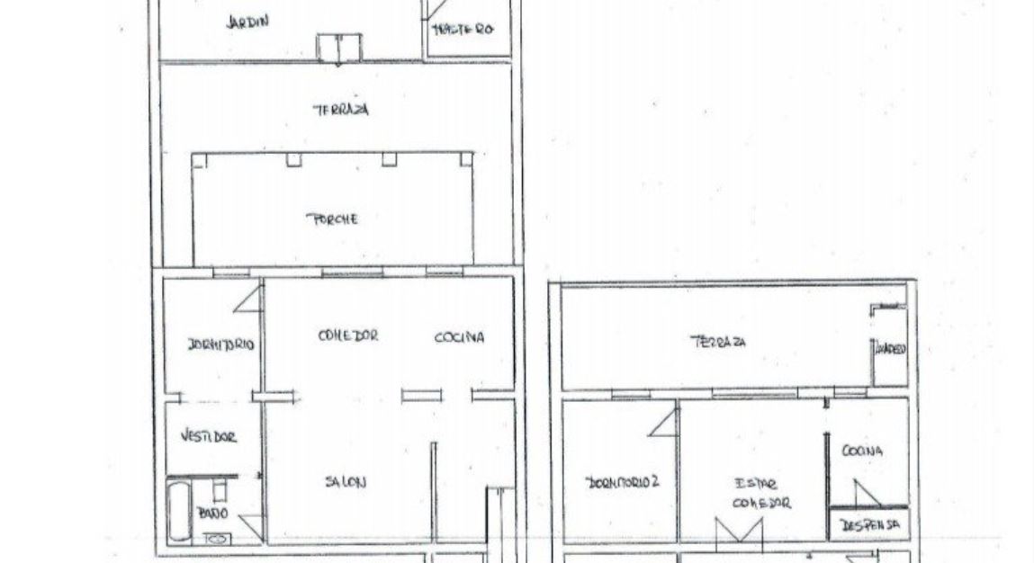
Distribution:

Basement: 1 bedroom, 1 bathroom on 84 m2 of living space and 92 m2 of garden, sea views

Ground floor: 1 bedroom, 1 bathroom, of which 104 m2 of living space and 53m2 terrace, sea view

Penthouse: 2 bedrooms, 1 bathroom on 83 m2 of living space and a terrace of 29 m2, sea view

Year of construction 1936.

2 of the total of 3 apartments are rented for the next 5 years, probably until 2026.

Equipment

  • bellver
  • Building
  • el terreno
  • Equipped kitchen
  • Fireplace
  • flat
  • garden
  • immobilie
  • mallorca
  • meerblick
  • miete
  • Needs renovation
  • palma
  • paseo maritimo
  • penthouse
  • Real estate
  • Sea view
  • Sea views
  • Shutters
  • terrace
  • terreno
  • Top price-performance ratio
  • Wooden windows