Ref 1569; Investering! Byggnadstomt med el-Terreno-projekt till salu

Investeringar fastigheter / Kommersiella · Palma - El Terreno • Ref 1569
Exposé (PDF)

Detaljer

Bostadsutrymme: 900 m²
Golvyta: 440 m²
Status: säljer
ID: 1569
Region: Palma - El Terreno

Beskrivning av

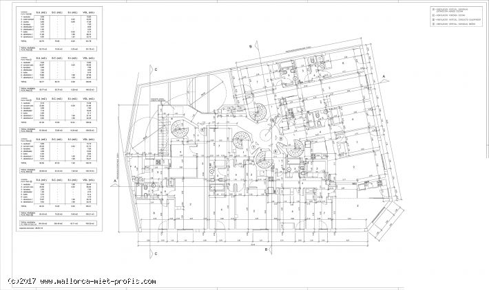
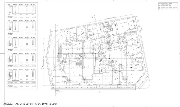
En av de sista byggtomter i Palma!
Boendet ligger i det nya kultdistriktet „El Terreno“, som ligger under bell ver slott med sin magnifika slottspark. Det är en 440m2 tomt på en platt plats. Det är mycket soligt och erbjuder enkel tillgång från vägen. Vatten, el och stadsgasledningar finns redan tillgängliga, liksom bygggropen för den underjordiska parkeringen.

Utrustning

  • bellver
  • el terreno
  • helt inhägnad
  • palma
  • Parkering
  • terreno
  • wohnung